| 一、使用条件 | |
|
本产品适用于稀油循环润滑系统中,其工作介质为汽轮机油、20~25号机械油及轧钢机油,运动粘度等级为N22~N460(相当ISO
VG22~VG460)。 稀油站的公称供油压力为0.63MPa;过滤精度0.08~0.12mm;冷却水温≤28℃;冷却水压力0.2~0.3MPa;换热器进油温度为50℃,温降7~8℃;使用蒸汽加热时蒸汽压力为0.2~0.4MPa。 |
|
|
二、工作原理 工作时,油液由齿轮泵从油箱吸出,经单向阀、双筒网式油滤器、列管式油冷却器,被直接送到设备的润滑点。油站的最高供油压力为0.4MPa,最低供油压力为0.1MPa,根据润滑点的要求,通过调节安全阀确定使用压力,当油站的工作压力超过安全阀的调定压力时,安全阀将自动打开,多余的油液即流回油箱。正常工作时,油泵一台工作、一台备用。有时设备耗油量由于某种原因需要增加时,则系统压力下降,当降到调定值时,通过压力控制器调节,备用泵自动开启,与工作泵一起工作,直到压力正常时,备用泵自动停止。若油压继续下降到另一调定值时,则通过另一压力控制器调节,发出事故警报。 双筒网片式油滤器的一组过滤滤芯工作,一组过滤滤芯备用,在进出口处接有差压发讯器,当压差超过0.15MPa(≥250L/min稀油站为0.15~0.1MPa),人工切换,备用滤芯工作,取出原工作滤芯,清洗或更换滤片。 油站出油口接有压力式电接点温度计,根据供油温度要求,调定最高和最低两个界限。在低温时,信号灯亮,人工开启加热器进行加热,当油温升至高点时,自动切断加热器,停止加热;供油口温度高时,报警并开冷却器。 ≥250L/min稀油站,采用蒸汽加热油箱中的润滑油,仪表盘尚多一检测冷却器进出水管压差的仪表,其主要部件均另外装于基础上;而≤125L/min稀油站的全部部件都装在油箱上,为整体式结构。 |
|
| 三、结构特点 | |
|
a)设有备用油泵,可保证向润滑点连续供油。 b)过滤器放在冷却器之前,可提高过滤和通过能力;更适合较高粘度的润滑介质。 c)采用双筒式过滤器,可不停车进行滤芯的清洗和更换。 d)采用列管式油冷却器,冷却效果好,阻力小,便于维修。 e)回油设有磁网过滤,可吸附清除油液中铁质微粒,保证油液清洁度及提高润滑部件寿命。 f)配有仪表盘和电控箱,观察运行参数方便,可实现自动控制和事故报警。 |
|
| 五、外形图 | |
|
|
|
|
|
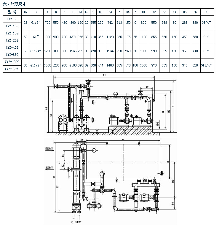
图1-1-1 XYZ-6G~XYZ-125G 稀油站外形图
|



淘宝旺旺