|
DRB-L系列电动润滑泵(20MPa)
|
|
|
一、概述 |
|
|
二、技术参数 |
|||||||||||
|
型号
|
公称压力MPa
|
公称流量
|
贮油器
|
配管方式
|
电机型号
|
电动机功率kW
|
减速比
|
转速r/min
|
减速器润滑油量L
|
重量kg
|
|
|
标准型号
|
引进型号
|
ml/min
|
容积L
|
||||||||
|
DRB-L60Z-H
|
U-25AL
|
20
|
60
|
20
|
环式
|
A02-7124
|
0.37
|
1:15
|
100
|
1
|
140
|
|
DRB-L60Z-Z
|
U-25AE
|
终端式
|
160
|
||||||||
|
DRB-L195Z-H
|
U-4AL
|
195
|
35
|
环式
|
Y802-4
|
0.75
|
1:20
|
75
|
2
|
210
|
|
|
DRB-L195Z-Z
|
U-4AE
|
终端式
|
230
|
||||||||
|
DRB-L585Z-H
|
U-5AL
|
585
|
90
|
环式
|
Y90L-4
|
1.5
|
5
|
456
|
|||
|
DRB-L585Z-Z
|
U-5AE
|
终端式
|
416
|
||||||||
使用介质为锥入度不低于265(25℃,150g)1/10mm的润滑脂(NLGI0#-2#)。
| DRB-L系列电动润滑泵外形尺寸 | |||||||||||
|
型号
|
L
|
B
|
H
|
L1
|
L2
|
L3
|
L4
|
B1
|
B2
|
B3
|
B4
|
|
DRB-L60Z-H
|
640
|
360
|
986
|
500
|
70
|
126
|
290
|
320
|
157
|
23
|
42
|
|
DRB-L60Z-Z
|
780
|
640
|
450
|
200
|
160
|
||||||
|
DRB-L195Z-H
|
800
|
452
|
1056
|
600
|
100
|
125
|
300
|
420
|
226
|
39
|
42
|
|
DRB-L195Z-Z
|
891
|
800
|
500
|
160
|
|||||||
|
DRB-L585Z-H
|
1160
|
585
|
1335
|
860
|
150
|
100
|
667
|
520
|
476
|
244
|
111
|
|
DRB-L585Z-Z
|
667
|
239
|
160
|
||||||||
|
型号
|
B5
|
B6
|
H1
|
H2
|
H3
|
H4
|
D
|
d
|
地脚螺栓
|
|
|
最大
|
最小
|
|||||||||
|
DRB-L60Z-H
|
118
|
20
|
598
|
155
|
60
|
130
|
-
|
269
|
14
|
M12x200
|
|
DRB-L60Z-Z
|
-
|
85
|
||||||||
|
DRB-L195Z-H
|
118
|
16
|
687
|
167
|
83
|
164
|
-
|
319
|
18
|
M16x400
|
|
DRB-L195Z-Z
|
-
|
108
|
||||||||
|
DRB-L585Z-H
|
226
|
22
|
815
|
170
|
110
|
248
|
277
|
457
|
22
|
M20x500
|
|
DRB-L585Z-Z
|
-
|
135
|
-
|
|||||||
| 三、型号说明 | |
|
|
|
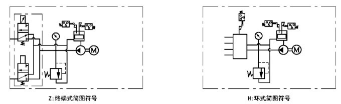
四、图型符号 |
|
|
|
| 五、接线指示 | |
|
|
| 六、工作原理 | |
|
该系列电动润滑泵由柱塞泵、贮油器、换向阀、电动机等部分组成。柱塞泵在电动机的驱动下,从贮油器吸入润滑脂,压送到换向阀,通过换向阀交替地沿两个出油口输送出去,当一个出油口压送润滑脂时,另一出油口与贮油器接通卸荷。 环式结构电动润滑泵配用液压换向阀,有四个接口,外接两根供油主管分别由两根供油管引回的回油管,依靠回油管内油脂的油压推动换向阀换向。 终端式结构电动润滑泵配用电磁换向阀,有二个接口,外接二根供油主管,依靠电磁铁的得失电实现换向供油。 柱塞泵换向阀的动作原理详见使用说明书。 |
|
|
七、使用说明 1、该系列电动润滑泵应安装在环境温度合适,灰尘少,振动小,便于调整、检查、维护保养及补脂方便的地方并且尽可能布置在系统的中心位置,缩短系统配管长度,保持最低压力降,使泵能产生足以克服润滑点阻力的压力。 2、使用前先向柱塞泵的减速腔内加入N220的工业齿轮油至油标规定液面。 3、向贮油器内补脂使用DJB-V70型电动加油泵从润滑泵的补给口补进,使用的润滑脂应清洁,不允许夹杂有污物。 4、润滑泵的回转方向是单向的,使用时必须按电机上旋向牌规定的旋向接线使用。 5、泵溢流阀的标准设定压力为23MPa,可以在0~20MPa范围内任意调节,在使用时不允许超过泵公称压力的15%(23MPa)。 6、环式润滑泵的液压换向阀的设定压力按5MPa调定。 7、该系列电动润滑泵为室内安装型,在室外或环境恶劣的场合使用时,必须采取防护措施。 |
|
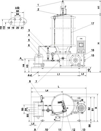
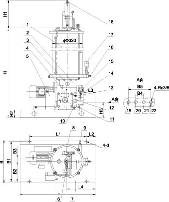
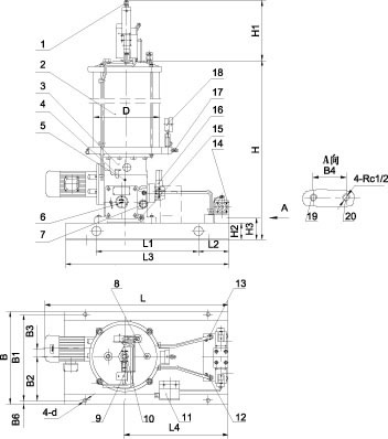
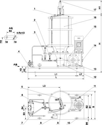
| 八、外型图 | |
|
|
| DRB-L60Z-H、DRB-L195Z-H型电动泵外形图 DRB-L585Z-H型电动泵外形图 | |
|
|
| DRB-L60Z-Z, DRZB-L195Z-Z型电动泵外形图 DRB-L585Z-Z型电动泵外形图 | |
|
九、订货须知 1、本系列电动润滑泵配用以下四种形式标准电控箱,可根据不同控制要求选择。 1.1 DEA-2E型终端式电控箱 1.2 DEA-2L型环式电控箱 1.3 R1902型环式带补脂控制电控箱 1.4 R1904型终端式带补脂控制电控箱 2、本系列电动润滑泵分部件订购按下表选型 |
|
|
南通信仁润滑液压提供优质电动干油泵。 [xss_clean][xss_clean]
|



淘宝旺旺